Profesjonalizm i kompleksowa obsługa

To właśnie te cechy najlepiej opisują współpracę z naszą firmią. Jeśli chcecie się Państwo o tym przekonać, to zapraszamy do współpracy!

więcej

PARK HANDLOWY SZAMOTUŁYPARK HANDLOWY SZAMOTUŁYPARK HANDLOWY SZAMOTUŁYPARK HANDLOWY SZAMOTUŁYPARK HANDLOWY SZAMOTUŁYPARK HANDLOWY SZAMOTUŁYPARK HANDLOWY SZAMOTUŁYPARK HANDLOWY SZAMOTUŁY

Anchoram, Nieruchomości Gorzów

Nieruchomości komercyjne » PARK HANDLOWY SZAMOTUŁY

Proponujemy powierzchnie najmu w nowej inwestycji - PARK HANDLOWY SZAMOTUŁY

Obiekt objęty opracowaniem, który uzyskał już PnB (pozwolenie na budowę) będzie znajdował się przy ulicy Bolesława Chrobrego w miejscowości Szamotuły, w województwie wielkopolskim.

Teren zlokalizowany jest przy głównym wjeździe do miasta, przy drodze wojewódzkiej nr 184, około 1 km od centrum. Teren jest doskonale skomunikowany i łączy się z największymi ośrodkami miejskimi rejonu Wielkopolski, co widać na załączonej mapie.

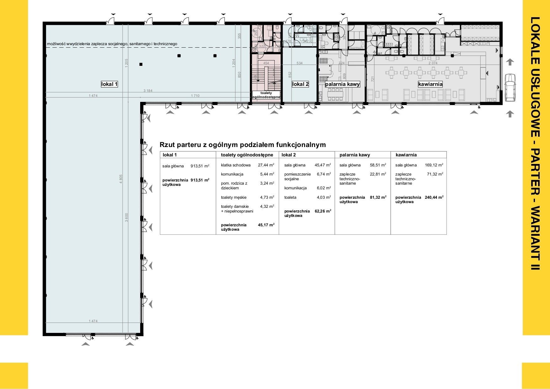
W aktualnej ofercie pod wynajem znajdują się lokale na parterze i piętrze zgodnie z załącznikami graficznymi, przedstawiającymi układ przestrzenny oraz wielkości poszczególnych lokali (wariant I i II). Istnieje możliwość stworzenia przestrzeni handlowej dopasowanej bezpośrednio pod potrzeby klienta.


Zainteresowanych najmem zapraszamy do kontaktu:

Tel.: +48 509 957 157

mail: biuro@anchoram.pl

Tel.: +48 501 186 095

mail: ambit_ambit@go2.pl

Galeria:

PARK HANDLOWY SZAMOTUŁYPARK HANDLOWY SZAMOTUŁYPARK HANDLOWY SZAMOTUŁYPARK HANDLOWY SZAMOTUŁYPARK HANDLOWY SZAMOTUŁYPARK HANDLOWY SZAMOTUŁYPARK HANDLOWY SZAMOTUŁYPARK HANDLOWY SZAMOTUŁY
Informacje dotyczące opisu nieruchomości podane są przez właściciela, mają charakter wyłącznie informacyjny i mogą podlegać aktualizacji. Powyższa oferta nieruchomości stanowi zaproszenie do rokowań zgodnie z Art. 71 KC i nie stanowi oferty określonej w art 66 i następnych KC.
« wróć do listy nieruchomościLicznik odwiedzin oferty: 3131